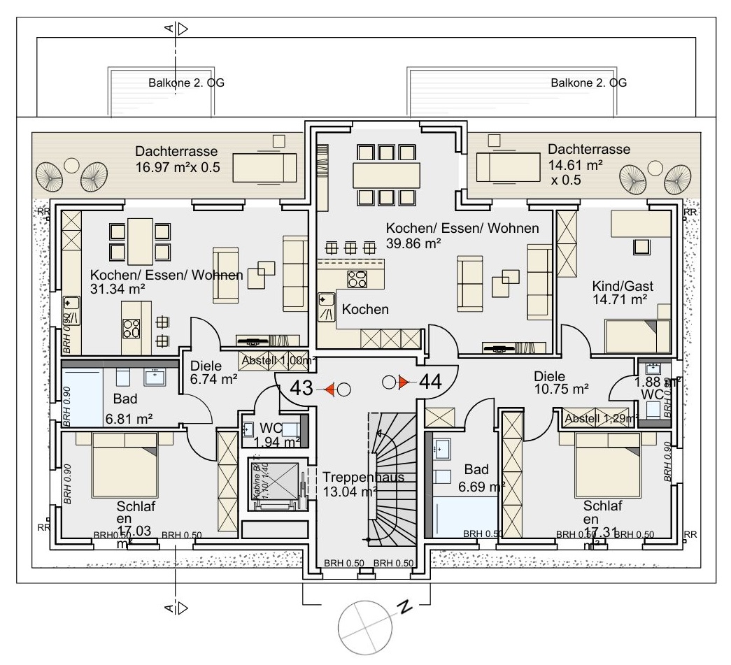
Nr. 43

Haus 4 | Penthouse | 2 Zi. | 73,44 m2 | 448.337 €

Mehr erfahren

Flächen

Gesamte Wohnfläche: 73,44 m²

Kochen / Essen / Wohnen: 31,34 m²
Schlafen: 17,03 m²
Bad: 6,81 m²
WC: 1,94 m²
Abstellraum: 1,00 m²
Diele: 6,74 m²
Balkon / Terrasse: 8,58 m²

Schlafzimmer: 1
Separate WCs: 1
Balkone: 1

Zustand & Erschliessung

Bauweise: Massiv
Energietyp: GEG 2024

Zustand: Neubau
Dachform: Flachdach
Erschließung: vollerschlossen

Ausstattungsmerkmale:

  • Ausstattung gehoben
  • Außenfassade: EG, 1. + 2. OG verklinkert, Staffelgeschoss Wärmedämmputzsystem
  • Barrierearm
  • Alle Wohnungen verfügen über einen Balkon oder eine Terrasse
  • Geräuscharmer, rollstuhlgerechter Personenaufzug
  • Fußbodenheizung
  • Luft-Wasser-Wärmepumpe zur Versorgung der Heiz- und Warmwasserenergie
  • Fenster und Fenstertüren mit elektrischen Aluminiumrollläden ausgestattet
  • Das Objekt erhält eine PV-Anlage zur Nutzung des PV-Stroms über den Allgemeinstrom
  • Mögliche Vorbereitung der Ladeinfrastruktur (E-Mobilität)
  • Kellerräume

Energieausweis:

  • Errichtung nach GEG 2024. Einzelheiten sind dem GEG-Nachweis zu entnehmen. Abweichung vorbehaltlich. Der GEG-Nachweis wird aktuell erstellt und folgt in Kürze.

Kempen liegt im Niederrhein und zeichnet sich durch eine kompakte, historisch gewachsene Innenstadt mit Fußgängerzonen und einem charmanten Altstadtcharakter aus. Von Schmeddersweg 4 bist du in wenigen Minuten fußläufig im Stadtzentrum mit Geschäften, Gastronomie und Dienstleistungen. Der Bahnhof Kempen bietet zudem regionale Zugverbindungen, z. B. nach Düsseldorf, Krefeld und Kleve.

Schulen & Bildung

In und um den Stadtkern gibt es mehrere Schulen für verschiedene Altersstufen, die in wenigen Minuten fußläufig zu erreichen sind:

  • Luise-von-Duesberg-Gymnasium
  • Gesamtschule Kempen
  • Regenbogenschule Kempen – Grundschule
  • Martin‑Schule – traditionelle Schule im Stadtgebiet

Daneben gibt es weitere Bildungseinrichtungen wie z. B. berufliche Schulen (Rhein‑Maas professional college construction) oder Gymnasien wie das Städtische Gymnasium Thomaeum (historisch alte Schule) direkt in der Kempener Innenstadt.

Kindergärten

Im Stadtgebiet und im Umfeld befinden sich mehrere Einrichtungen, z. B.:

Kindergarten Kempen – eine der Kindertagesstätten im Stadtbereich
Es gibt mehrere weitere Kitas in Kempen, die meisten fußläufig oder mit kurzer Busfahrt erreichbar sind.

Bäder & Freizeit

aqua‑sol Sauna und Wasserwelt – großes Schwimmbad mit Sauna und Wellness

Ludwig‑Jahn‑halle – Sporthalle für Vereine und Aktivitäten

Einkaufsmöglichkeiten

In und um den Stadtkern von Kempen gibt es zahlreiche Möglichkeiten für den täglichen Einkauf (alles fußläufig oder mit kurzer Fahrt):

Supermärkte & Lebensmittel: REWE Center, EDEKA, Lidl, Penny, Biomarkt,

Buttermarkt: Marktplatz mit Einzelhändlern und Wochenmarkt-Atmosphäre

Verkehr & Anbindung

Kempen ist verkehrstechnisch gut angebunden:

Die A40 und A57 sind über wenige Minuten mit dem Auto erreichbar (Richtungen Rhein/Ruhr oder Richtung Niederlande).

Schreiben Sie uns gerne! Wir melden uns umgehend bei Ihnen zurück!

5 + 0 = ?

Objektanschrift

Schmeddersweg 4
47906 Kempen

Google Route

Vertrieb

CMB Immo-Projektentwicklung GmbH
Heinz-Nixdorf-Str. 14 a-c
41179 Mönchengladbach

0173-3942432

info@neubauprojekt-kempen.de